Wohnpark Am Hogen Hagen, Bad Zwischenahn - Neue, moderne 2-Zi.-Erdgeschosswohnung mit Terrasse
Immobilien Schrandt GmbH & Co. KG
Herr Olaf Groß
Lehmkuhlen 2
49757 Vrees
+49 4479 5360000
info@immobilien-schrandt.de
Wohnpark Am Hogen Hagen, Bad Zwischenahn - Neue, moderne 2-Zi.-Erdgeschosswohnung mit Terrasse

Preise & Kosten
Größe & Zustand
Energie
keine AngabenAusstattung
Die gesamte Wohnanlage wird unterirdisch mit
einer Tiefgarage ausgestattet. Hier sind für die 24
Eigentumswohnungen in Haus 3 (H3) und Haus 4 (H4) 35 KFZ-Einstellplätze,
Stellflächen für Fahrräder und separate Abstellräume für Mülltonnen
vorgesehen.
Eine Ampelanlage sowie ein Sectionaltor regeln
den Zugang der Bewohner in die Tiefgarage.
- 24 Eigentumswohnungen und Tiefgarage
- massives Mauerwerk
- Klinkermauerwerk
- Verblender Firma Röben, Typ Lyon, perlweiss
- Kunststofffenster (6-Kammer-System)
- Isolierverglasung (3-Scheiben-Wärmeschutzglas)
- elektrische Rollläden
- Wohnungseingangstüren und Innentüren in Weißlack, 2.11 m Höhe
- Zentralheizungsanlage/Luftwärmepumpe
- Fußbodenheizung
- Bad:
* Waschtischanlage (Anzahl lt. Zeichnung), 60 cm breit Renova Plan
* Ablage als Vorwandinstallation gefliest
* Rechteckspiegel 80/60 cm
* Wandhängende Toilette als Tiefspüler Renova Plan
* Geflieste, bodengleiche Dusche mit Duschrinne
- Gäste-WC (falls vorhanden)
* Wandhängende Toilette als Tiefspüler Renova Plan
* Handwaschbecken ca. 45 cm breit Renova Plan
* Rechteckspiegel 40/60 cm
- Böden:
* Fliesenböden - Alle Räume die keinen Fliesenboden erhalten,
werden mit Hybridechtholzboden oder Vinyldesignboden ausgestattet
- Balkon/Terrasse
- Tiefgaragenstellplatz optional
- Gemeinschaftsfahrradraum
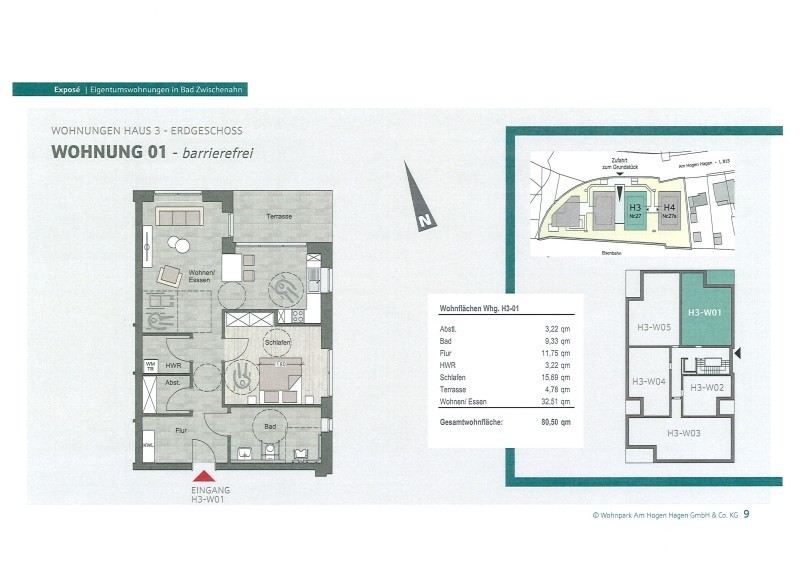
Erdgeschoss: Whg. H3-01
Wohnfläche: 80,50 m²
Flur, Abstellraum, Bad, HWR, Schlafzimmer, Wohn-/esszimmer, Terrasse
Gemeinschaftsfläche: Gemeinschaftsfahrradraum
Kaufpreis inkl. MwSt.: 491.675,00 EUR
Optional Tiefgaragen-PKW-Stellplatz inkl. MwSt.: 35.000,00 EUR
GERNE LASSEN WIR IHNEN EIN AUSFÜHRLICHES EXPOSÈ ZUKOMMEN!
ODER
Geschäftsstelle auch in Bad Zwischenahn:
Immobilien Schrandt GmbH & Co.KG
Peterstraße 25
26160 Bad Zwischenahn
04403 8107506
0176 64481480
Lage
26160 Bad ZwischenahnDeutschland
Bad Zwischenahn am Meer
Ein blühendes Paradies am drittgrößten Binnensee Niedersachsens unweit gelegen von der Küste Ostfrieslands und den Toren der Niederlande.
Inmitten der Ammerländer Parklandschaft führen rund 380 Kilometer gut ausgeschilderte Wander- und Radwege durchs Moor, am Zwischenahner Meer entlang, vorbei an Baumschulen und wunderschön angelegten Privatgärten.
Bekannt ist Bad Zwischenahn auch für seine gesundheitstouristischen Angebote und seine kulinarischen Besonderheiten wie Smoortaal und Schinken, die in urigen Gaststätten angeboten werden.
Top Veranstaltungen das ganze Jahr
In Bad Zwischenahn ist kulturell immer was los! Das ganze Jahr über gibt es
zahlreiche Veranstaltungen und Events, die mittlerweile über die Region hinaus
bekannt sind.
Zwischenahner Meer - Perle des Ammerlandes
Der Wohnpark am Hogen Hagen befindet sich in exponierter Lage in Bad Zwischenahn. Das Zwischenahner
Meer, der Kurpark, der Bahnhof, das Wellenbad sowie viele Einkaufsmöglichkeiten sind fußläufig in nur
wenigen Minuten erreichbar. Auch Ärztehäuser und Schulen liegen in unmittelbarer Nähe.
Der Bad Zwischenahner Bahnhof liegt an der Bahnstrecke Oldenburg-Leer. Von hier gelangen Sie über
verschiedene Linien in die größeren Städte sowie an die Nordsee-Küste. Zudem wird der Ort von mehreren
Bussen im Linienverkehr befahren. Die nahegelegenen Flughäfen Bremen, Münster/Osnabrück und
Hamburg schaffen eine schnelle Verbindung in viele Länder.
Objektbeschreibung
Die Bauausführung erfolgt in konventioneller, handwerksgerechter Bauweise nach denallgemein anerkannten Regeln der Technik und nach dem Stand der Technik, wie sie
sich z.B. durch die Verarbeitung von Produkten oder aber der Anwendung von bautechnischen Verfahren, die durch das Deutsche Institut für Bautechnik geprüft, zugelassen und veröffentlicht wurden, darstellt.
Hierzu gehören unter anderem Produkte und Verfahrenstechniken auf der Grundlage
einer allgemein bauaufsichtlich.
Bauart & Konstruktion
- Effizienzhaus-40
- Personenaufzug in jedem Wohnhaus
- Hochwertige Gebäudehülle
- Moderne Luft/Wasser-Wärmepumpe
- Photovoltaikanlage inkl. Stromspeicher
- Fussbodenheizungen in allen Wohnungen
- Lüftungsanlage(n) mit Wärmerückgewinnung
Sonstiges
Garten- und RasenflächenIm Bereich der Gärten der Wohnungen im EG wird Rasen eingesät und eine Hecke
in Abhängigkeit von behördlichen Genehmigungen gepflanzt. Hecken als Sichtschutz
(Höhe ca. 0,6 m) zwischen Terrassen und zwischen Terrassen und Allgemeinflächen.
Auf den übrigen Grünflächen wird ebenfalls Rasen eingesät und -soweit erforderlich mit
Ziersträuchern und Laubhölzern bepflanzt.
Die Gestaltung der Pflasterflächen und der Umfang der Begrünung erfolgt nach den
gestalterischen Vorgaben der Firma Wohnpark am Hogen Hagen GmbH & Co. KG.
Tiefgarage
Für jede Wohneinheit ist ein PKW-Stellplatz in der Tiefgarage vorgesehen. Über den
Aufzug sind die Wohneinheiten barrierefrei zu erreichen. Außerdem befinden sich Abstellflächen
für Fahrräder in einem abschließbaren, nur für Bewohner zugänglichen Fahrradraum.
Ansprechpartner
Immobilien Schrandt GmbH & Co. KGHerr Olaf Groß
Lehmkuhlen 2
49757 Vrees
+49 4479 5360000
info@immobilien-schrandt.de

